All Things Creative and Building
PBJ_MOB-ASC_Final Edit (2).jpg

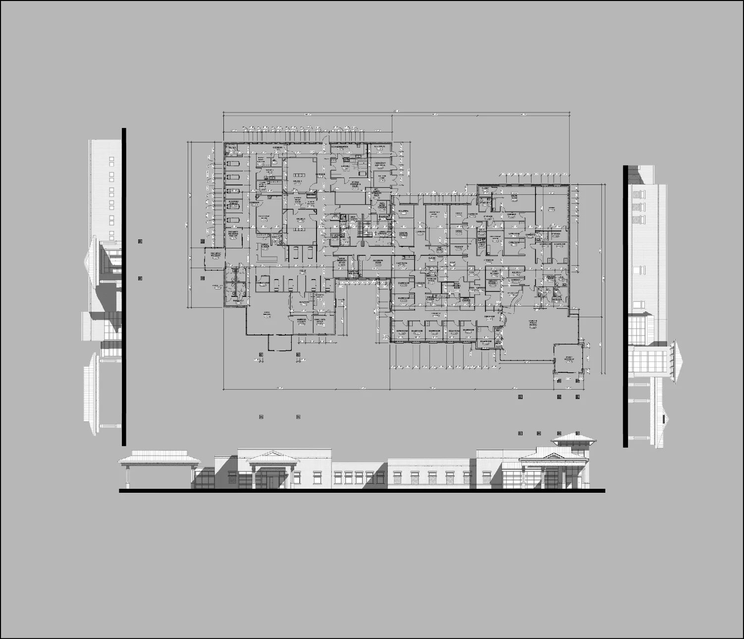
Palmetto Bone & Joint MOB & ASC

This project started with sketch exterior elevations that were completed by a project architect. From there I began to fine tune the look, build the model in Revit, all in effort to produce renders to the client for approval. 

From exterior elevations we worked to the interior spaces and then to interior elevations. This took the longest amount of time, making sure the medical equipment was placed appropriately. Most of the equipment in the rooms are courtesy of their manufacturer, but I designed and modeled one of the nurse stations.

I was fortunate to employ all of my architectural and medical knowledge into this project. In the end I learned a great deal on the inner workings of a private medical office. From this project, I feel comfortable working on and detailing out projects of this size.

Palmetto Bone & Joint MOB

 

This project started with sketch exterior elevations that were completed by another architect. From there I began to fine tune the look, build the model in Revit, all in effort to produce renders to the client for approval. 

From exterior elevations we worked to the interior spaces and then to interior elevations. This took the longest amount of time, making sure the medical equipment was placed appropriately. Most of the equipment in the rooms are courtesy of their manufacturer, but I designed and modeled one of the nurse stations.

I was fortunate to employ all of my architectural and medical knowledge into this project. In the end I learned a great deal on the inner workings of a private medical office. From this project, I feel comfortable working on and detailing out projects of this size.